Rodinný dům byl navržen jako průnik tradiční architektury lidového stavění na venkově a současných potřeb moderního bydlení. Ukázalo se, že převzaté…

O realizaci

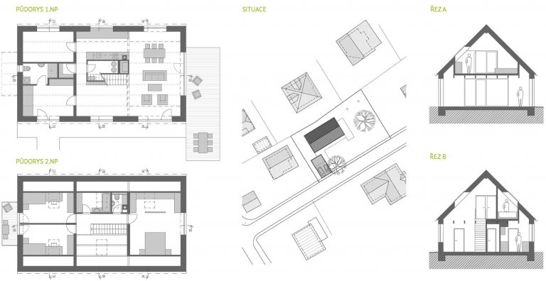
Rodinný dům byl navržen jako průnik tradiční architektury lidového stavění na venkově a současných potřeb moderního bydlení. Ukázalo se, že převzaté principy chalup stavěné do konce 19. století jsou použitelné i dnes.

Jednoduchá figura domu je čitelná nejen zvenčí, ale i zevnitř. A to především díky otevřenému stropu ve střední části a vynecháním krajních polí stropní konstrukce obytného prostoru v přízemí. Vznikl tak velkorysý prostor, v jehož středu je “pec” soustřeďující zdroje veškerého tepla v domě. A tak jako se chodívalo na pec spát, tak i zde se stoupá po tělese pece do ložnic. Vizuální sjednocení povrchů exteriéru a interiéru posiluje celkový výraz domu.

Zahrada rozvíjí klíčové ideje, které formovaly podobu domu. Pracuje s výhledy z pobytových míst domu a zahrady do okolní krajiny. Motiv tradičního venkovského stavení v soudobé podobě rozehrává do podoby tradiční venkovské zahrady s moderním výrazem. Myšlenku nezávislosti domu na dodatkových energiích z vnější rozvíjí v zahradě maximálně přizpůsobené místním podmínkám, která nevyžaduje výměny půdního substrátu, intenzivní závlahu či hnojení. Uplatňují se zde bylinný trávník, suchomilná květnatá louka, extenzivní trvalkové záhony s vyšší mírou autoregulace, dřeviny nacházející se v okolní krajině a tedy nejlépe prosperující v místních podmínkách.

Obrázky

Fotograf: Jaroslav Hejzlar, Lucie Medková, Jan Medek

Komentáře

Další realizace