Navrhovaný objekt je citlivě zasazen do území, dbá na pozitivní využití výrazné morfologie pozemku a snaží se být pokorný k místu i okolí. Výrazně svažitý…

O realizaci

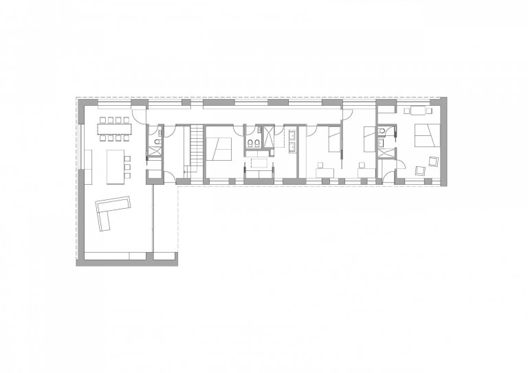
Navrhovaný objekt je citlivě zasazen do území, dbá na pozitivní využití výrazné morfologie pozemku a snaží se být pokorný k místu i okolí. Výrazně svažitý terén a snaha o zachování jeho původní modelace umožnily zapustit část nadzemního obytného podlaží pod okolní úroveň. Dům tak splývá s pozemkem, dává dýchat sousedním objektům a nevytváří výškovou bariéru. Díky postupnému zanořování hmoty směrem k severní hraně pozemku působí velmi subtilně a z prostoru ulice je dominantní pouze jeho jižní část. Hmota vhodně navazuje na polohu okolních domů, doplňuje nedefinovanou uliční frontu a vytváří tak jednotící charakter uličního profilu.

Objekt má dvě podlaží - nadzemní obytné a podzemní, ve kterém jsou umístěny veškeré technické a skladové prostory. Nadzemní část se skládá ze dvou materiálů - tvrdé „skořápky“ a měkkého vnitřku. Ochrannou slupku tvoří sklocementové desky přesného rastru osazené na čelních stěnách, soklu a atice. Vnitřní měkká část domu, která ukrývá život je navržena z dřevěných fasádních prken ze sibiřského modřínu. Vzniká tak kontrast mezi pevným a nestárnoucím materiálem, který chrání obyvatele domu a přírodním dřevěným prvkem, který žije se svými obyvateli a v průběhu času se mění.

Obrázky

Fotograf: PROGRES ATELIER

Komentáře


K2N LANDSCAPE  | 16. 1. 2018

Krása!

Další realizace